Goodman

Type

Offices

Location

Barcelona

Area

300m2

Share

Goodman focuses on developing and managing industrial properties to the highest quality standards in key locations close to large urban populations, such as Barcelona and Madrid, and critical infrastructure, such as major road arteries, ports, airports and distribution centres.

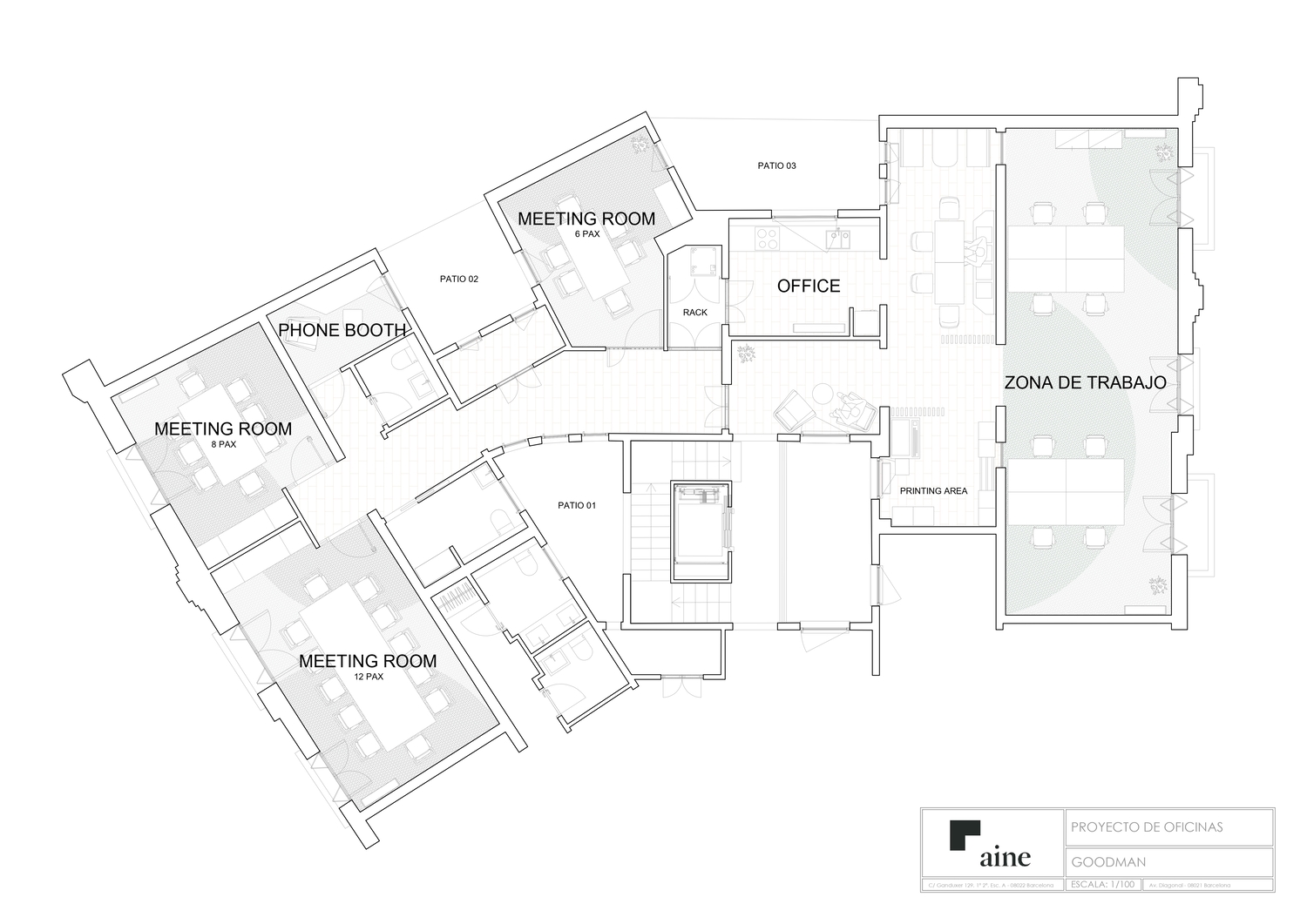
Our aim for this project was to create dynamic spaces, with a variety of meeting points, a comfortable break/dining area and a large operational workspace. The result was very welcoming.

Plans and technical sheets

RELATED PROJECTS